Mieszkanie na sprzedaż Bydgoszcz, Centrum

2 pokoje
37.20 m²
7 500,00 zł/m2
3 piętro
OJN-MS-125237

279 000 zł

Mieszkanie na sprzedaż
Nowa oferta

Szczegóły oferty

Symbol oferty OJN-MS-125237
Powierzchnia 37,20 m²
Liczba pokoi 2
Liczba sypialni 1
Rodzaj budynku kamienica
Technologia budowlana cegła
Piętro 3
Liczba pięter w budynku 4
Stan lokalu do adaptacji
Okna PCV
Andrzej

Andrzej

Agent
Nr licencji: 777

Napisz wiadomość 12 Ofert

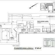
Opis nieruchomości

Na sprzedaż funkcjonalne mieszkanie o powierzchni 37,2 m², usytuowane na parterze w odrestaurowanej kamienicy. Budynek przeszedł generalny remont – wykonano nową elewację, odnowiono klatkę schodową, a podwórze zostało na nowo zaaranżowane, co podnosi komfort mieszkańców oraz estetykę całej nieruchomości.

Lokal składa się z dwóch pokoi i daje duże możliwości własnej aranżacji – idealna propozycja zarówno dla osób szukających mieszkania „pod siebie”, jak i inwestorów planujących wynajem. Położenie na pierwszym piętrze zapewnia wygodny dostęp, a układ pomieszczeń pozwala na stworzenie funkcjonalnej przestrzeni dziennej z oddzielną sypialnią.

Najważniejsze atuty:

  • powierzchnia: 37,2 m²
  • 2 pokoje
  • trzecie piętro
  • kamienica po generalnym remoncie
  • nowa elewacja budynku
  • klatka schodowa po generalnym remoncie
  • odnowione, zaaranżowane podwórze
  • mieszkanie do własnej aranżacji
  • duży potencjał inwestycyjny

Mieszkanie stanowi świetną bazę do stworzenia komfortowego lokum w klimatycznej, odnowionej kamienicy. Idealne jako pierwsze mieszkanie, pod wynajem lub jako inwestycja kapitału.

Zapraszam do kontaktu w celu uzyskania dodatkowych informacji oraz umówienia prezentacji.

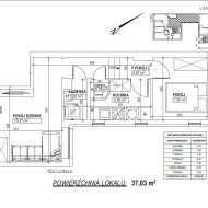
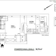
Posiadamy inne mieszkania w tej inwestycji

Lokalizacja nieruchomości

Podobne oferty

Mieszkanie na sprzedaż

Bydgoszcz, Centrum

2 pokoje 34 m2 9 411,76 zł/m2

Mieszkanie na sprzedaż

Bydgoszcz, Centrum

1 pokoj 32 m2 10 281,25 zł/m2

Mieszkanie na sprzedaż

Bydgoszcz, Centrum

1 pokoj 49 m2 7 400,00 zł/m2

Mieszkanie na sprzedaż

Bydgoszcz, Centrum

2 pokoje 37 m2 8 410,81 zł/m2

Agent

Proszę wprowadzić poprawne imię i nazwisko
Proszę wprowadzić poprawny numer telefonu
Proszę wprowadzić poprawny adres e-mail
Proszę zaznaczyć wymagane zgody
Rozwiąż równanie:
25 8
Niepoprawny wynik