Mieszkanie na sprzedaż Bydgoszcz, Okole

2 pokoje
43.73 m²
6 837,41 zł/m2
1 piętro
OJN-MS-125098

299 000 zł

Mieszkanie na sprzedaż

Szczegóły oferty

Symbol oferty OJN-MS-125098
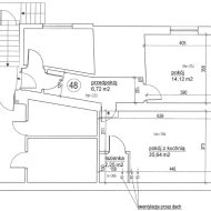
Powierzchnia 43,73 m²
Powierzchnia użytkowa [m2] 43,73 m²
Liczba pokoi 2
Rodzaj budynku kamienica
Technologia budowlana cegła stara
Standard
Piętro 1
Liczba pięter w budynku 1
Stan lokalu po generalnym remoncie
Okna PCV
Balkon brak
Gaz tak - miejski
Woda jest
Otoczenie centrum miasta
Ogrzewanie C.O. GAZOWE
Pomieszczenia
Powierzchnia pokoi 20,64;14,12 m2
Podłogi pokoi panele podłogowe
Typ kuchni otwarta na pokój
Rodzaj kuchni aneks kuchenny - połączony z salonem
Typ łazienki razem z wc
Liczba łazienek 1
Powierzchnia łazienki [m2] 2,25 m2
Glazura łazienki nowego typu
Wyposażenie łazienki kabina prysznicowa, lustro, prysznic, umywalka, WC
Liczba przedpokoi 1
Powierzchnia przedpokoi 6,7 m2

Opis nieruchomości

Polecam do sprzedaży bardzo ładne, dwupokojowe mieszkanie o powierzchni 43,73 m2.
Mieszkanie zostało w pełni umeblowane i czeka na nowych właścicieli.
Cały budynek został wyremontowany, wszystkie instalacje wymienione.
W kamienicy ogrzewanie centralne - gazowe.

W sąsiedztwie WSG, szkoła podstawowa, Multikino, na Stary Rynek oraz Kanał Bydgoski 10 minut spacerem.

Świetna propozycja dla osób poszukujących swojego pierwszego mieszkania, ale także dla inwestorów pod najem długo i krótkoterminowy.

Polecam i zapraszam na prezentację.

Lokalizacja nieruchomości

Podobne oferty

Nowa oferta

Mieszkanie na sprzedaż

Bydgoszcz, Okole

2 pokoje 26 m2 12 115,38 zł/m2
Nowa oferta

Agent

Proszę wprowadzić poprawne imię i nazwisko
Proszę wprowadzić poprawny numer telefonu
Proszę wprowadzić poprawny adres e-mail
Proszę zaznaczyć wymagane zgody
Rozwiąż równanie:
11 6
Niepoprawny wynik