Hala na sprzedaż Bydgoszcz, Bartodzieje

1342.05 m²
707,87 zł/m2
OJN-HS-125087

950 000 zł

Hala na sprzedaż
Nowa oferta

Szczegóły oferty

Symbol oferty OJN-HS-125087
Powierzchnia 1 342,05 m²
Opłaty w czynszu ogrzewanie
Opłaty wg liczników prąd, woda
Zagosp. działki zagospodarowana
Ukształtowanie działki płaska
Kształt działki prostokąt
Podst. materiał budowlany murowany
Rok budowy 1960
Przeznaczenie hali biurowo-magazynowy, magazynowy, produkcyjno-magazynowy, produkcyjny
Plac utwardzany tak
Materiał konstrukcyjny murowany
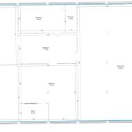
Pomieszczenia
Liczba pomieszczeń biurowych 5
Liczba pomieszczeń sanitarnych 3

Opis nieruchomości

Polecam do sprzedaży funkcjonalny obiekt produkcyjno- magazynowo - biurowy o łącznej powierzchni 1342 m², zlokalizowany na 1 piętrze 3-kondygnacyjnego budynku w Bydgoszczy (Bartodzieje / Bydgoszcz Wschód).

POWIERZCHNIA:

ok. 1160 m² – magazyn (moduły 100–250 m², ścianki do demontażu )

 ok. 76 m² – biura klimatyzowane ( 4 gabinety + sala konferencyjna )

PARAMETRY:

- wysokość:2,8 m ( przęsła 2,17 m ), słupy rozstawione co 5,7 m
- nośność stropu: 1 000 kg/m²
- posadzka niepyląca
- rampa rozładunkowa
- winda towarowo-osobowa 1 000 kg (UDT, RESURS, raz w miesiącu przegląd ),  wysokość 2 m, szerokość 1,7 m
- przydział mocy 14 KW, można zwiększyć do 100 KW
- parking + plac manewrowy (TIR)
- dojazd utwardzony
- światłowód ORANGE

MEDIA:

- prąd
- woda
- kanalizacja
- ogrzewanie miejskie KPEC

Obiekt zlokalizowany w strefie magazynowo - handlowej, blisko Castorama , Galeria Pomorska, szybki dojazd do głównych arterii miasta.

CENA:

950 000 zł netto

Polecam i zapraszam na prezentację.


 

I recommend for sale a functional production, warehouse, and office facility with a total area of 1,342 m², located on the 1st floor of a three-storey building in Bydgoszcz (Bartodzieje / Bydgoszcz East).

AREA:

  • approx. 1,160 m² – warehouse space (modules of 100–250 m², demountable partition walls)

  • approx. 76 m²air-conditioned offices (4 individual offices + conference room)

SPECIFICATIONS:

  • ceiling height: 2.8 m (bays 2.17 m), columns spaced every 5.7 m

  • floor load capacity: 1,000 kg/m²

  • dust-free flooring

  • loading ramp

  • passenger/freight lift 1,000 kg (UDT certified, RESURS, monthly inspections), height 2.0 m, width 1.7 m

  • allocated power supply 14 kW, expandable to approx. 100 kW

  • parking spaces + maneuvering yard (TIR access)

  • paved access road

  • ORANGE fiber-optic internet

UTILITIES:

  • electricity

  • water

  • sewage

  • district heating (KPEC)

The property is located in a warehouse and commercial zone, close to Castorama and Galeria Pomorska, with quick access to the city’s main transport routes.

PRICE:

PLN 950,000 net


Lokalizacja nieruchomości

Agent

Proszę wprowadzić poprawne imię i nazwisko
Proszę wprowadzić poprawny numer telefonu
Proszę wprowadzić poprawny adres e-mail
Proszę zaznaczyć wymagane zgody
Rozwiąż równanie:
22 8
Niepoprawny wynik