Dom na sprzedaż Sicienko, Pawłówek

5 pokoi
338.00 m²
7 985,21 zł/m2
OJN-DS-123403

2 699 000 zł

Dom na sprzedaż

Szczegóły oferty

Symbol oferty OJN-DS-123403
Powierzchnia 338,00 m²
Powierzchnia użytkowa [m2] 180,00 m²
Powierzchnia działki [m2] 5 346 m²
Liczba pokoi 5
Rodzaj domu jednorodzinny
Technologia budowlana silka
Standard
Liczba pięter w budynku 2
Garaż dwustanowiskowy
Okna PCV
Instalacje dobre
Balkon średni
Liczba balkonów 1
Liczba tarasów 2
Zagosp. działki zagospodarowana
Ukształtowanie działki lekko nachylona
Kształt działki prostokąt
Pokrycie dachu dachówka ceramiczna
Pozwolenie na użytkowanie tak
Stan budynku BARDZO WYSOKI STANDARD
Podpiwniczenie tak
Ogrodzenie działki ogrodzona
Rok budowy 2020
Gaz brak
Woda tak - miejska
Dojazd droga szutrowa
Otoczenie działki niezabudowane
Ogrzewanie pompa ciepła
Alarm tak
Tarasy taras duży
Prąd jest
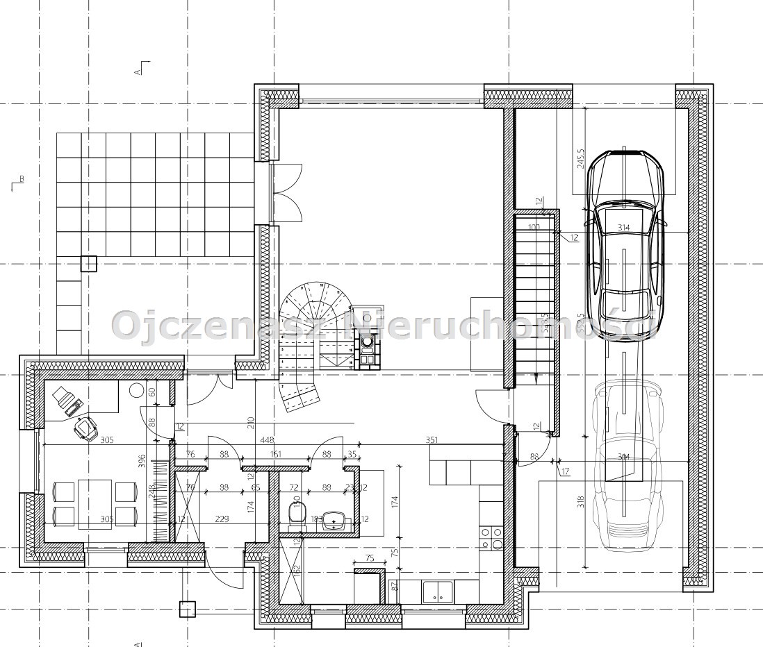
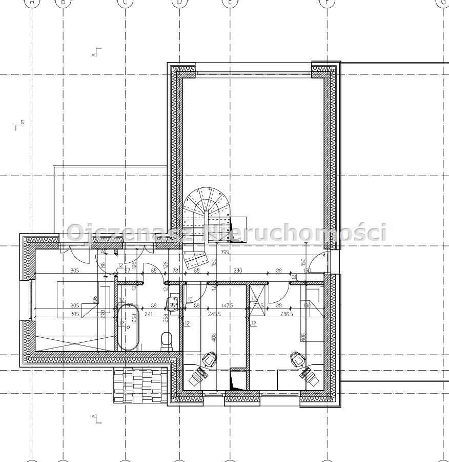
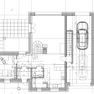
Pomieszczenia

Opis nieruchomości

Polecam do sprzedaży jedyny w swoim rodzaju dom jednorodzinny położony na pięknej, dużej ponad 5000 m2 działce na ścianie lasu.
Dom został zaprojektowany wg indywidualnego projektu z dbałością o każdy szczegół, wykończony naturalnymi materiałami, najwyższej jakości.
Drzwi, podłogi, schody, meble wykonane z drewna jesionowego oraz dębowego.
Na dole "open space " ( salon, kuchnia ) , wysokość w salonie 8,5 m, dodatkowo gabinet oraz łazienka dla gości, przejście do garażu oraz piwnicy, w której z powodzeniem można zaprojektować domowe SPA.
Kuchnia zabudowana, wyposażona w niezbędny sprzęt AGD.
Na górze znajduje się sypialnia, pokoje dla dzieci oraz przestronna łazienka z wanną wolnostojącą, z pokoju dziecięcego wyjście na strych.
Garaż dwustanowiskowy, z dodatkową bramą od strony ogrodu.
Elewacja z cegły ceramicznej ( nie jest to klinkier ).
Pompa ciepła + fotwoltaika podnosi atrakcyjność nieruchomości ze względu na niskie koszty utrzymania.
Dom dla klienta ceniącego sobie nietuzinkowe rozwiązania architektoniczne oraz spokój i bliskość natury.

Polecam i zapraszam na prezentację.

 

Lokalizacja nieruchomości

Agent

Proszę wprowadzić poprawne imię i nazwisko
Proszę wprowadzić poprawny numer telefonu
Proszę wprowadzić poprawny adres e-mail
Proszę zaznaczyć wymagane zgody
Rozwiąż równanie:
27 6
Niepoprawny wynik